大学紹介ABOUT TAISHO
最新ニュース
大正大学新学部開設に伴うセキュリティ工事に係る入札公告
2026年2月5日
[工事概要]
工事名:大正大学1号館4階、5階及び15号館6階から9階セキュリティ工事
工事場所:〒170-8470 東京都豊島区西巣鴨3丁目20番1号 1号館、15号館
発 注 者:学校法人 大正大学
・1号館4階、5階の共同卒研室、ゼミ室2部屋の電子錠システム設置
・1号館4階学科事務室への電子錠システム設置
・1号館4階、5階より内階段の出入り箇所へ電子錠システム設置
・15号館6階から9階のEVホールから居室に入る電子錠システム設置
[予定工期]
・2026年2月~2026年3月下旬
[入札について]
見積提出期日:2026年2月5日(木)12:00迄
入札書類:見積書(Excelデータ、PDFデータ)、導入機器に関する詳細資料、施工計画工程表を書類及び電子データで提出
入札者の決定:原則最低価格提示会社の選定とするが、工法や仕様の技術的提案内容を勘案して決定することがある。決定の基準は公開しない。(入札方式は一般競争入札技術提案方式)
結果の通知:電子メールにて入札結果を連絡いたします。
[予定価格]¥25,000,000-(税込)
入札者の決定後、施主要望による増額、大幅な市場変動による増額は認めるが、施工に際し当然に含むべき事項や合理的な理由なき増額は認めない。
[設置する仕様]
□1号館
・4階共同卒研室は、自動扉1ケ所に認証機器を設置し、入室記録を取得と共に扉の開放を行う。なお、退出に際しては押ボタンで自動扉を開放する。
・4階ゼミ室2部屋は、入口開き扉の部屋外・部屋内に認証機器設置し開錠・施錠を認証の都度行う。開錠者・施錠者の記録を取得。
・4階内階段への扉に、内側・外側に認証機器を設置し入退場記録を取得。
・4階学科事務室の扉に、認証機器を設置し開錠者の記録を取得。
・5階共同卒研室は、自動扉1ケ所に認証機器を設置し、入室記録を取得と共に扉の開放を行う。なお、退出に際しては押ボタンで自動扉を開放する。
・5階ゼミ室2部屋は、入口開き扉の部屋外・部屋内に認証機器設置し開錠・施錠を認証の都度行う。開錠者・施錠者の記録を取得。
・階内階段への扉に、内側・外側に認証機器を設置し入退場記録を取得。
□15号館
・6階~9階のEVホール前居室入口各階1か所開き扉に認証機器を設置し、入室記録を取得。
□その他
・入室記録等は統合管理をする仕様とする。
[設置する建具]
・1号館4階、5階
パーテーションドア:マイティ70
ドア:LSドア
・15号館6階~9階
EVホール前入口・・・ファイヤードF オートドア 片開 袖壁
[認証方法]
・2026年4月より大正大学にて利用開始するアプリケーションで表示する学生情報のQRコードデータに対応する事。
・本QRコードは、利用者情報、発行時刻情報をJWT(JWE)による公開規格を用いて暗号化した上でQRコードとして表示したものである。
・QRコード復号化処理・発行時刻検証を行うリーダー・機器を用いることで、スクリーンショットでの使い回しのできない仕様とする。
[契約条件]
・支払条件は選定業者と協議により決定する。
[その他]
・現場調査については要望に応じ別途案内するものとする。
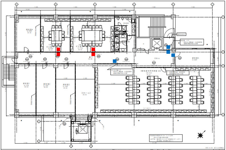
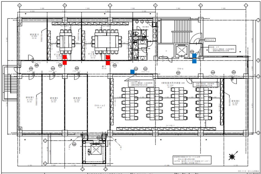
[記号の種別]
青の四角・・・特定多数利用、入室の記録管理取得。開錠QRコードタッチで行う。
赤の四角・・・特定多数利用、開錠、施錠をQRコードタッチで行う。
[1号館4階仕様]

[1号館5階仕様]

[15号館6階から9階仕様]

[見積提出先・お問合せ先]
〒170-8470
東京都豊島区西巣鴨三丁目20-1 大正大学 経営マネジメント本部 施設課
TEL 03-3918-7311(代表)
E-mail shisetsu@mail.tais.ac.jp
